Top.Mail.Ru

Братеевская ул., д. 10, к. 4

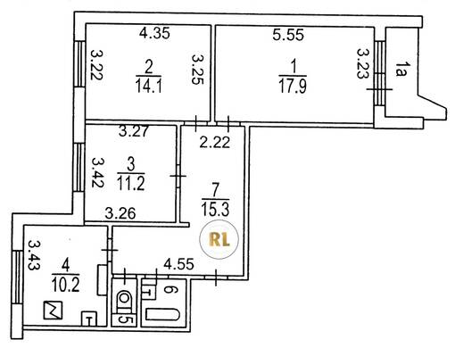
База каталог, Кол-во подъездов: 6, Отсутствует, П-44, Москва, Братеево, Площадь парковки: 0, Пассажирский лифт: 6, От метро: 500, Южный, нет, Наименьшее кол-во этажей: 1, Наибольшее кол-во этажей: 17, Алма-Атинская, Кол-во помещений: 322, Кол-во нежилых помещений: 4, Год ввода в эксплуатацию: 1996, 3-комн, Кол-во жилых помещений: 318, E, дом 10, корпус 4, да, да, да, да, да, да, Имеется, Грузовых лифтов: 6, Год постройки: 1996, Братеевская улица, 37.762291, 55.630558
Свяжитесь со мной на счет цены
10 дн.
T55S630558L37S762291T

На карте


Условия сделки

Источник


Старт продаж

Возможно заинтересует