Top.Mail.Ru

Братеевская ул., д. 10, к. 3

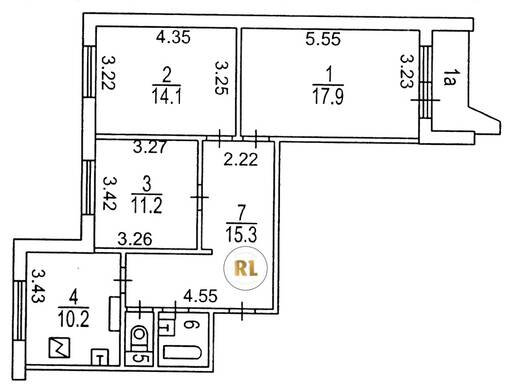
База каталог, Кол-во подъездов: 2, Отсутствует, П-44, Москва, Братеево, Площадь парковки: 0, Пассажирский лифт: 2, От метро: 520, Южный, нет, Наименьшее кол-во этажей: 1, Наибольшее кол-во этажей: 17, Алма-Атинская, Кол-во помещений: 135, Кол-во нежилых помещений: 0, Год ввода в эксплуатацию: 1997, 3-комн, Кол-во жилых помещений: 135, D, дом 10, корпус 3, да, да, да, да, да, да, Имеется, Грузовых лифтов: 2, Год постройки: 1997, Братеевская улица, 37.760952, 55.630970
Свяжитесь со мной на счет цены
10 дн.
T55S630970L37S760952T

На карте


Условия сделки

Источник


Старт продаж

Возможно заинтересует