Top.Mail.Ru

Братеевская ул., д. 21

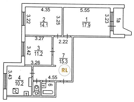
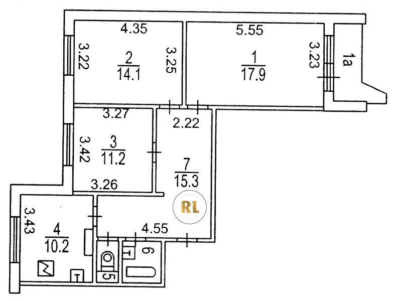
База каталог, Кол-во подъездов: 5, Отсутствует, П-44, Москва, Братеево, Площадь парковки: 398, Пассажирский лифт: 5, От метро: 740, Южный, да, Наименьшее кол-во этажей: 1, Наибольшее кол-во этажей: 15, Борисово, Кол-во помещений: 290, Кол-во нежилых помещений: 0, Год ввода в эксплуатацию: 1999, 3-комн, Кол-во жилых помещений: 290, D, дом 21, нет, да, да, да, да, да, Имеется, Грузовых лифтов: 5, Год постройки: 1999, Братеевская улица, 37.752724, 55.631519
Свяжитесь со мной на счет цены
10 дн.
T55S631519L37S752724T

На карте


Условия сделки

Источник


Старт продаж

Возможно заинтересует