Top.Mail.Ru

улица Академика Капицы, д. 4

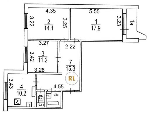
База каталог, Кол-во подъездов: 3, Имеется, П-44, Москва, Коньково, Площадь парковки: 270, Пассажирский лифт: 3, От метро: 550, Юго-Западный, да, Наименьшее кол-во этажей: 1, Наибольшее кол-во этажей: 17, Коньково, Кол-во помещений: 204, Кол-во нежилых помещений: 1, Год ввода в эксплуатацию: 1988, 3-комн, Кол-во жилых помещений: 203, D, дом 4, да, да, да, да, да, да, Имеется, Грузовых лифтов: 3, Год постройки: 1988, улица Академика Капицы, 37.526483, 55.631569
Свяжитесь со мной на счет цены
10 дн.
T55S631569L37S526483T

На карте


Условия сделки

Источник


Старт продаж

Возможно заинтересует