Top.Mail.Ru

улица Островитянова, д. 36

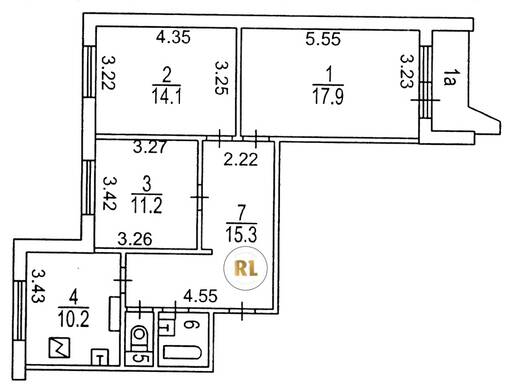
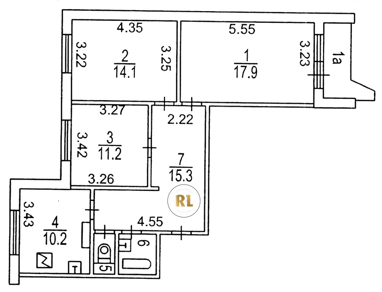
База каталог, Кол-во подъездов: 3, Имеется, П-44, Москва, Коньково, Площадь парковки: 0, Пассажирский лифт: 3, От метро: 520, Юго-Западный, нет, Наименьшее кол-во этажей: 17, Наибольшее кол-во этажей: 17, Коньково, Кол-во помещений: 202, Кол-во нежилых помещений: 6, Год ввода в эксплуатацию: 1986, 3-комн, Кол-во жилых помещений: 196, Не присвоен, дом 36, да, да, да, да, да, да, Имеется, Грузовых лифтов: 3, Год постройки: 1985, улица Островитянова, 37.526339, 55.632281
Свяжитесь со мной на счет цены
10 дн.
T55S632281L37S526339T

На карте


Условия сделки

Источник


Старт продаж

Возможно заинтересует