Top.Mail.Ru

Профсоюзная ул., д. 126

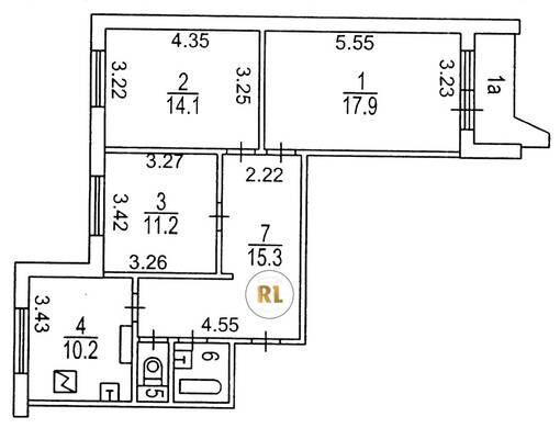
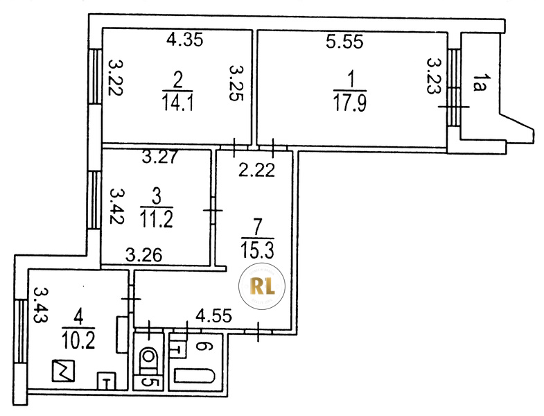
База каталог, Кол-во подъездов: 2, П-44, Москва, Теплый Стан, Площадь парковки: 0, Пассажирский лифт: 2, От метро: 133, Юго-Западный, нет, Наименьшее кол-во этажей: 17, Наибольшее кол-во этажей: 17, Коньково, Кол-во помещений: 0, Кол-во нежилых помещений: 0, Год ввода в эксплуатацию: 1991, 3-комн, Кол-во жилых помещений: 0, Не присвоен, дом 126, да, да, да, да, да, да, Грузовых лифтов: 2, Год постройки: 1991, Профсоюзная улица, 37.517150, 55.632398
Свяжитесь со мной на счет цены
10 дн.
T55S632398L37S517150T

На карте


Условия сделки

Источник


Старт продаж

Возможно заинтересует