Top.Mail.Ru

улица Островитянова, д. 37А

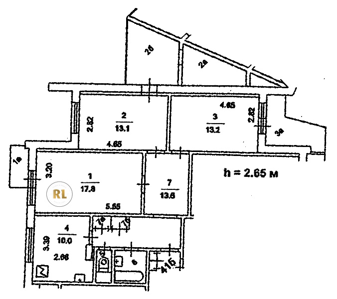
База каталог, Кол-во нежилых помещений: 2, П-3/16, Москва, Коньково, Пассажирский лифт: 2, От метро: 650, Юго-Западный, да, Наименьшее кол-во этажей: 1, Наибольшее кол-во этажей: 16, Коньково, Кол-во помещений: 126, Кол-во подъездов: 2, 3-комн, Год ввода в эксплуатацию: 1977, Кол-во жилых помещений: 124, D, дом 37А, нет, да, да, да, да, да, Имеется, Грузовых лифтов: 2, Год постройки: 1977, улица Островитянова, 37.528468, 55.633124
Свяжитесь со мной на счет цены
10 дн.
T55S633124L37S528468T

На карте


Условия сделки

Источник


Старт продаж

Возможно заинтересует