Top.Mail.Ru

Родниковая ул., д. 20

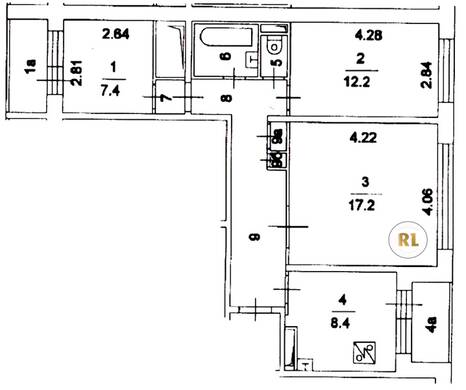
База каталог, Кол-во подъездов: 5, П-30, Москва, Солнцево, Пассажирский лифт: 10, От метро: 2060, Западный, да, Наименьшее кол-во этажей: 12, Наибольшее кол-во этажей: 12, Боровское шоссе, Кол-во помещений: 239, Кол-во нежилых помещений: 1, Год ввода в эксплуатацию: 1986, 3-комн, Кол-во жилых помещений: 238, дом 20, нет, да, да, да, нет, нет, Грузовых лифтов: 0, Год постройки: 1986, Родниковая улица, 37.383229, 55.633755
Свяжитесь со мной на счет цены
10 дн.
T55S633755L37S383229T

На карте


Условия сделки

Источник


Старт продаж

Возможно заинтересует