Top.Mail.Ru

Братеевская ул., д. 16, к. 1

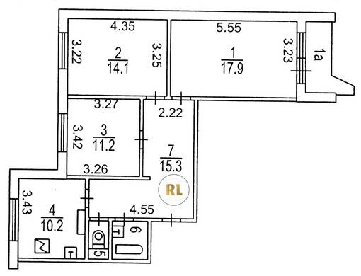
База каталог, Кол-во подъездов: 7, Отсутствует, П-44, Москва, Братеево, Площадь парковки: 747, Пассажирский лифт: 7, От метро: 168, Южный, да, Наименьшее кол-во этажей: 1, Наибольшее кол-во этажей: 17, Алма-Атинская, Кол-во помещений: 459, Кол-во нежилых помещений: 7, Год ввода в эксплуатацию: 1997, 3-комн, Кол-во жилых помещений: 452, D, дом 16, корпус 1, да, да, да, да, да, да, Имеется, Грузовых лифтов: 7, Год постройки: 1997, Братеевская улица, 37.766010, 55.634334
Свяжитесь со мной на счет цены
10 дн.
T55S634334L37S766010T

На карте


Условия сделки

Источник


Старт продаж

Возможно заинтересует