Top.Mail.Ru

Боровское шоссе, д. 58

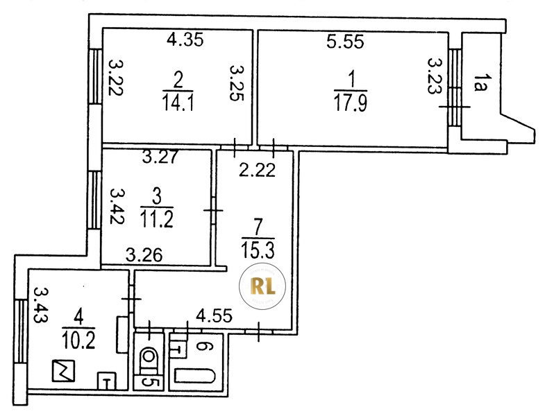
База каталог, Кол-во подъездов: 3, Имеется, П-44, Москва, Ново-Переделкино, Площадь парковки: 0, Пассажирский лифт: 3, От метро: 640, Западный, нет, Наименьшее кол-во этажей: 17, Наибольшее кол-во этажей: 17, Рассказовка, Кол-во помещений: 203, Кол-во нежилых помещений: 0, Год ввода в эксплуатацию: 1989, 3-комн, Кол-во жилых помещений: 203, В, дом 58, нет, да, да, да, да, да, Имеется, Грузовых лифтов: 3, Год постройки: 1989, Боровское шоссе, 37.344161, 55.634796
Свяжитесь со мной на счет цены
10 дн.
T55S634796L37S344161T

На карте


Условия сделки

Источник


Старт продаж

Возможно заинтересует