Top.Mail.Ru

Варшавское шоссе, д. 114, к. 4

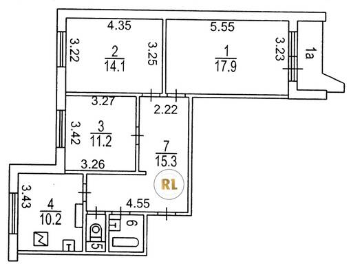
База каталог, Кол-во подъездов: 3, Имеется, П-44, Москва, Чертаново Северное, Площадь парковки: 0, Пассажирский лифт: 3, От метро: 920, Южный, нет, Наименьшее кол-во этажей: 1, Наибольшее кол-во этажей: 17, Чертановская, Кол-во помещений: 203, Кол-во нежилых помещений: 0, Год ввода в эксплуатацию: 1988, 3-комн, Кол-во жилых помещений: 203, В, дом 114, корпус 4, нет, да, да, да, да, да, Имеется, Грузовых лифтов: 3, Год постройки: 1988, Варшавское шоссе, 37.616126, 55.635198
Свяжитесь со мной на счет цены
10 дн.
T55S635198L37S616126T

На карте


Условия сделки

Источник


Старт продаж

Возможно заинтересует