Top.Mail.Ru

Варшавское шоссе, д. 114, к. 2

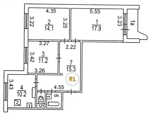
База каталог, Кол-во подъездов: 2, Имеется, П-44, Москва, Чертаново Северное, Площадь парковки: 0, Пассажирский лифт: 2, От метро: 780, Южный, нет, Наименьшее кол-во этажей: 1, Наибольшее кол-во этажей: 17, Чертановская, Кол-во помещений: 128, Кол-во нежилых помещений: 0, Год ввода в эксплуатацию: 1988, 3-комн, Кол-во жилых помещений: 128, В, дом 114, корпус 2, нет, да, да, да, да, да, Имеется, Грузовых лифтов: 2, Год постройки: 1988, Варшавское шоссе, 37.617132, 55.636829
Свяжитесь со мной на счет цены
10 дн.
T55S636829L37S617132T

На карте


Условия сделки

Источник


Старт продаж

Возможно заинтересует