Top.Mail.Ru

Паромная ул., д. 7, к. 3

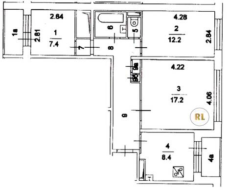
База каталог, Кол-во подъездов: 7, Имеется, П-30, Москва, Братеево, Площадь парковки: 451, Пассажирский лифт: 14, От метро: 600, Южный, да, Наименьшее кол-во этажей: 1, Наибольшее кол-во этажей: 14, Алма-Атинская, Кол-во помещений: 359, Кол-во нежилых помещений: 0, Год ввода в эксплуатацию: 1985, 3-комн, Кол-во жилых помещений: 359, E, дом 7, корпус 3, нет, да, да, да, да, да, Отсутствует, Грузовых лифтов: 0, Год постройки: 1985, Паромная улица, 37.764609, 55.637591
Свяжитесь со мной на счет цены
10 дн.
T55S637591L37S764609T

На карте


Условия сделки

Источник


Старт продаж

Возможно заинтересует