Top.Mail.Ru

улица Скульптора Мухиной, д. 7, к. 3

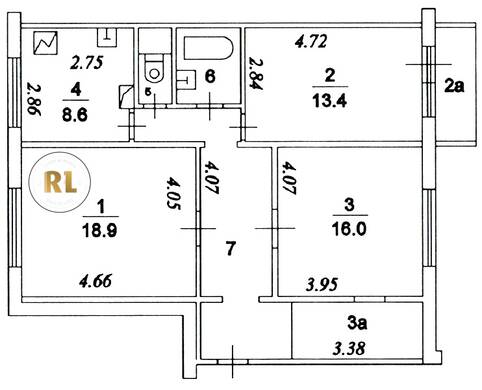
База каталог, Кол-во подъездов: 3, Имеется, П-46, Москва, Ново-Переделкино, Площадь парковки: 0, Пассажирский лифт: 6, От метро: 860, Западный, нет, Наименьшее кол-во этажей: 14, Наибольшее кол-во этажей: 14, Новопеределкино, Кол-во помещений: 166, Кол-во нежилых помещений: 0, Год ввода в эксплуатацию: 1991, 3-комн, Кол-во жилых помещений: 166, В, дом 7, корпус 3, нет, да, да, да, да, да, Имеется, Грузовых лифтов: 0, Год постройки: 1991, улица Скульптора Мухиной, 37.342742, 55.638409
Свяжитесь со мной на счет цены
10 дн.
T55S638409L37S342742T

На карте


Условия сделки

Источник


Старт продаж

Возможно заинтересует