Top.Mail.Ru

Боровское шоссе, д. 43, к. 1

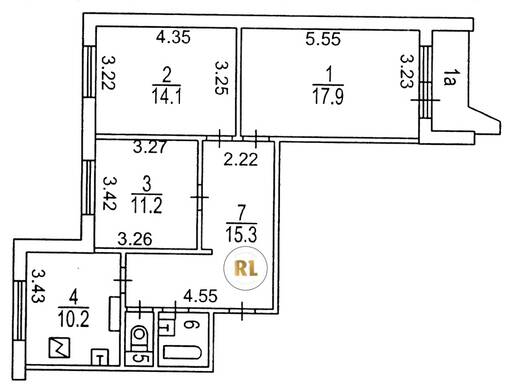
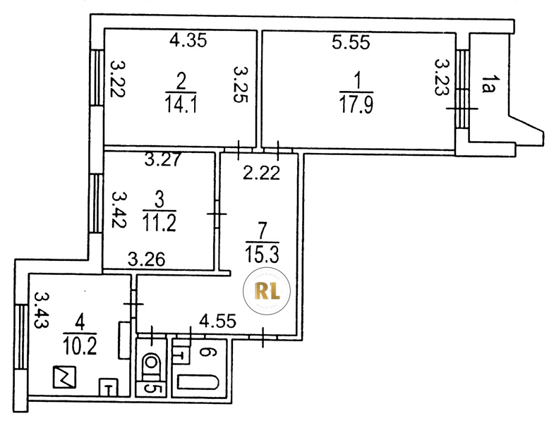
База каталог, Кол-во подъездов: 2, Имеется, П-44, Москва, Ново-Переделкино, Площадь парковки: 0, Пассажирский лифт: 2, От метро: 212, Западный, нет, Наименьшее кол-во этажей: 17, Наибольшее кол-во этажей: 17, Новопеределкино, Кол-во помещений: 130, Кол-во нежилых помещений: 2, Год ввода в эксплуатацию: 1988, 3-комн, Кол-во жилых помещений: 128, В, дом 43, корпус 1, да, да, да, да, да, да, Имеется, Грузовых лифтов: 2, Год постройки: 1988, Боровское шоссе, 37.358049, 55.638765
Свяжитесь со мной на счет цены
10 дн.
T55S638765L37S358049T

На карте


Условия сделки

Источник


Старт продаж

Возможно заинтересует