Top.Mail.Ru

Боровское шоссе, д. 45

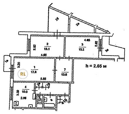
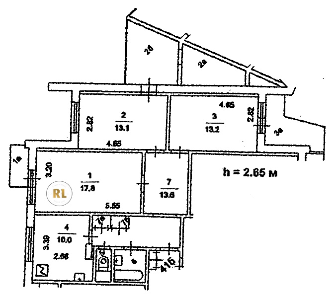
База каталог, Кол-во подъездов: 4, Имеется, П-3/17, Москва, Ново-Переделкино, Площадь парковки: 0, Пассажирский лифт: 4, От метро: 179, Западный, нет, Наименьшее кол-во этажей: 17, Наибольшее кол-во этажей: 17, Новопеределкино, Кол-во помещений: 272, Кол-во нежилых помещений: 0, Год ввода в эксплуатацию: 1988, 3-комн, Кол-во жилых помещений: 272, В, дом 45, да, да, да, да, да, да, Имеется, Грузовых лифтов: 4, Год постройки: 1988, Боровское шоссе, 37.356720, 55.638826
Свяжитесь со мной на счет цены
10 дн.
T55S638826L37S356720T

На карте


Условия сделки

Источник


Старт продаж

Возможно заинтересует