Top.Mail.Ru

Родниковая ул., д. 4, к. 6

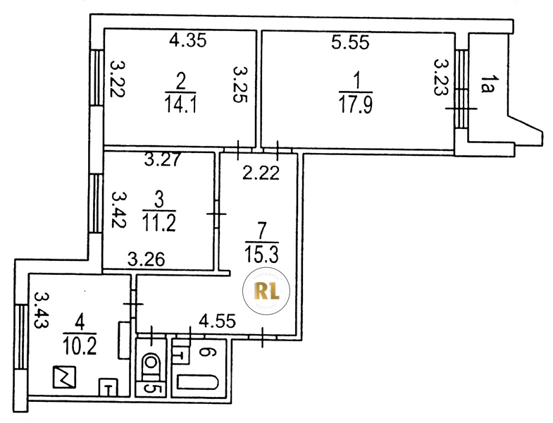
База каталог, Кол-во подъездов: 2, Имеется, П-44-1/17, Москва, Солнцево, Пассажирский лифт: 2, От метро: 1120, Западный, да, Наименьшее кол-во этажей: 17, Наибольшее кол-во этажей: 17, Боровское шоссе, Кол-во помещений: 136, Кол-во нежилых помещений: 0, Год ввода в эксплуатацию: 1997, 3-комн, Кол-во жилых помещений: 136, дом 4, корпус 6, нет, да, да, да, да, нет, Имеется, Грузовых лифтов: 2, Год постройки: 1997, Родниковая улица, 37.375710, 55.639146
Свяжитесь со мной на счет цены
10 дн.
T55S639146L37S375710T

На карте


Условия сделки

Источник


Старт продаж

Возможно заинтересует