Top.Mail.Ru

улица Авиаторов, д. 5, к. 2

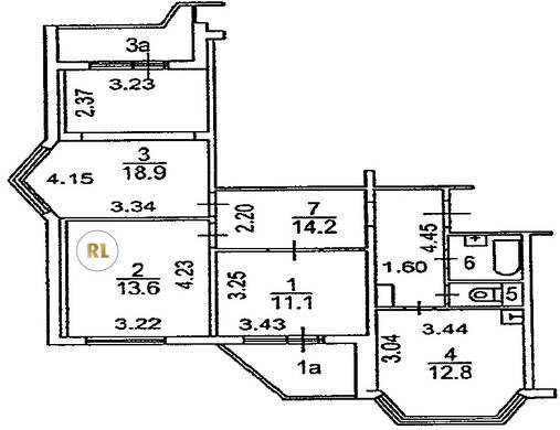
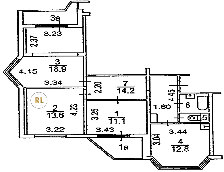
База каталог, Кол-во подъездов: 5, Отсутствует, П-44T, Москва, Солнцево, Площадь парковки: 0, Пассажирский лифт: 5, От метро: 1430, Западный, нет, Наименьшее кол-во этажей: 17, Наибольшее кол-во этажей: 17, Солнцево, Кол-во помещений: 327, Кол-во нежилых помещений: 7, Год ввода в эксплуатацию: 2014, 3-комн, Кол-во жилых помещений: 320, С, дом 5, корпус 2, нет, да, да, да, да, нет, Отсутствует, Грузовых лифтов: 5, Год постройки: 2014, улица Авиаторов, 37.399111, 55.639308
Свяжитесь со мной на счет цены
10 дн.
T55S639308L37S399111T

На карте


Условия сделки

Источник


Старт продаж

Возможно заинтересует