Top.Mail.Ru

улица Авиаторов, д. 5, к. 1

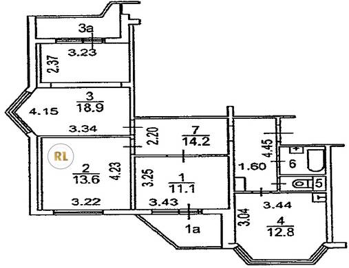
База каталог, Кол-во подъездов: 5, Имеется, П-44T, Москва, Солнцево, Площадь парковки: 0, Пассажирский лифт: 0, От метро: 1480, Западный, нет, Наименьшее кол-во этажей: 17, Наибольшее кол-во этажей: 17, Солнцево, Кол-во помещений: 328, Кол-во нежилых помещений: 8, Год ввода в эксплуатацию: 2013, 3-комн, Кол-во жилых помещений: 320, С, дом 5, корпус 1, нет, да, да, да, да, нет, Имеется, Грузовых лифтов: 10, Год постройки: 2013, улица Авиаторов, 37.400432, 55.640045
Свяжитесь со мной на счет цены
10 дн.
T55S640045L37S400432T

На карте


Условия сделки

Источник


Старт продаж

Возможно заинтересует