Top.Mail.Ru

улица Авиаторов, д. 5, к. 4

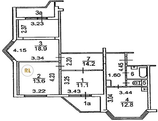
База каталог, Кол-во подъездов: 2, Имеется, П-44T, Москва, Солнцево, Площадь парковки: 0, Пассажирский лифт: 2, От метро: 1250, Западный, нет, Наименьшее кол-во этажей: 17, Наибольшее кол-во этажей: 17, Солнцево, Кол-во помещений: 130, Кол-во нежилых помещений: 2, Год ввода в эксплуатацию: 2014, 3-комн, Кол-во жилых помещений: 128, С, дом 5, корпус 4, нет, да, да, да, да, нет, Имеется, Грузовых лифтов: 2, Год постройки: 2014, улица Авиаторов, 37.397377, 55.640127
Свяжитесь со мной на счет цены
10 дн.
T55S640127L37S397377T

На карте


Условия сделки

Источник


Старт продаж

Возможно заинтересует