Top.Mail.Ru

улица Шолохова, д. 13

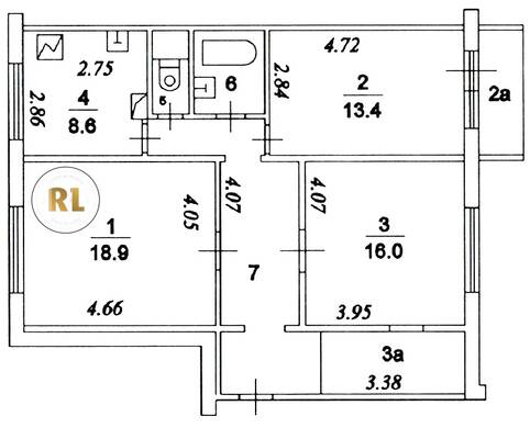
База каталог, Кол-во подъездов: 3, Имеется, П-46, Москва, Ново-Переделкино, Площадь парковки: 0, Пассажирский лифт: 6, От метро: 540, Западный, нет, Наименьшее кол-во этажей: 14, Наибольшее кол-во этажей: 14, Новопеределкино, Кол-во помещений: 166, Кол-во нежилых помещений: 1, Год ввода в эксплуатацию: 1989, 3-комн, Кол-во жилых помещений: 165, В, дом 13, да, да, да, да, да, да, Имеется, Грузовых лифтов: 0, Год постройки: 1989, улица Шолохова, 37.346973, 55.640980
Свяжитесь со мной на счет цены
10 дн.
T55S640980L37S346973T

На карте


Условия сделки

Источник


Старт продаж

Возможно заинтересует