Top.Mail.Ru

улица Островитянова, д. 11

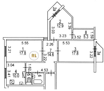
База каталог, Кол-во помещений: 316, Имеется, П-3M, Москва, Коньково, Пассажирский лифт: 5, От метро: 1350, Юго-Западный, да, Наименьшее кол-во этажей: 1, Наибольшее кол-во этажей: 17, Коньково, Кол-во подъездов: 5, Год ввода в эксплуатацию: 1999, Кол-во нежилых помещений: 3, 3-комн, Кол-во жилых помещений: 313, дом 11, нет, да, да, да, да, нет, Грузовых лифтов: 5, Год постройки: 1999, улица Островитянова, 37.501681, 55.641193
Свяжитесь со мной на счет цены
10 дн.
T55S641193L37S501681T

На карте


Условия сделки

Источник


Старт продаж

Возможно заинтересует