Top.Mail.Ru

Боровское шоссе, д. 30

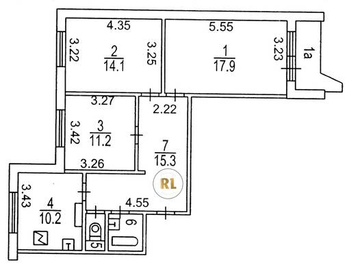
База каталог, Кол-во подъездов: 5, Имеется, П-44, Москва, Ново-Переделкино, Площадь парковки: 0, Пассажирский лифт: 5, От метро: 94, Западный, нет, Наименьшее кол-во этажей: 17, Наибольшее кол-во этажей: 17, Новопеределкино, Кол-во помещений: 320, Кол-во нежилых помещений: 2, Год ввода в эксплуатацию: 1989, 3-комн, Кол-во жилых помещений: 318, В, дом 30, да, да, да, да, да, да, Имеется, Грузовых лифтов: 5, Год постройки: 1989, Боровское шоссе, 37.356172, 55.641244
Свяжитесь со мной на счет цены
10 дн.
T55S641244L37S356172T

На карте


Условия сделки

Источник


Старт продаж

Возможно заинтересует