Top.Mail.Ru

улица Скульптора Мухиной, д. 8

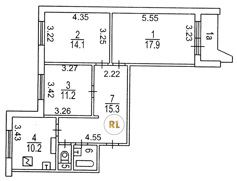
База каталог, Кол-во подъездов: 3, П-44, Москва, Ново-Переделкино, Пассажирский лифт: 3, От метро: 800, Западный, да, Наименьшее кол-во этажей: 0, Наибольшее кол-во этажей: 17, Новопеределкино, Кол-во помещений: 192, Кол-во нежилых помещений: 0, Год ввода в эксплуатацию: 1991, 3-комн, Кол-во жилых помещений: 192, дом 8, нет, да, да, да, да, да, Грузовых лифтов: 3, Год постройки: 1991, улица Скульптора Мухиной, 37.344592, 55.641559
Свяжитесь со мной на счет цены
10 дн.
T55S641559L37S344592T

На карте


Условия сделки

Источник


Старт продаж

Возможно заинтересует