Top.Mail.Ru

Чоботовская ул., д. 3

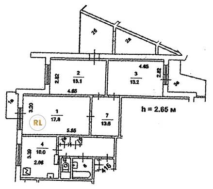
База каталог, Кол-во подъездов: 6, Имеется, П-3/17, Москва, Ново-Переделкино, Площадь парковки: 0, Пассажирский лифт: 6, От метро: 310, Западный, нет, Наименьшее кол-во этажей: 17, Наибольшее кол-во этажей: 17, Новопеределкино, Кол-во помещений: 407, Кол-во нежилых помещений: 1, Год ввода в эксплуатацию: 1989, 3-комн, Кол-во жилых помещений: 406, В, дом 3, да, да, да, да, да, да, Имеется, Грузовых лифтов: 6, Год постройки: 1989, Чоботовская улица, 37.354393, 55.641778
Свяжитесь со мной на счет цены
10 дн.
T55S641778L37S354393T

На карте


Условия сделки

Источник


Старт продаж

Возможно заинтересует