Top.Mail.Ru

Балаклавский проспект, д. 16, к. 2

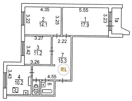
База каталог, Кол-во подъездов: 4, П-44, Москва, Зюзино, Площадь парковки: 0, Пассажирский лифт: 4, От метро: 370, Юго-Западный, нет, Наименьшее кол-во этажей: 17, Наибольшее кол-во этажей: 17, Чертановская, Кол-во помещений: 265, Кол-во нежилых помещений: 5, Год ввода в эксплуатацию: 1989, 3-комн, Кол-во жилых помещений: 260, Не присвоен, дом 16, корпус 2, да, да, да, да, да, да, Имеется, Грузовых лифтов: 4, Год постройки: 1989, Балаклавский проспект, 37.599346, 55.642133
Свяжитесь со мной на счет цены
10 дн.
T55S642133L37S599346T

На карте


Условия сделки

Источник


Старт продаж

Возможно заинтересует