Top.Mail.Ru

улица Академика Волгина, д. 14, к. 1

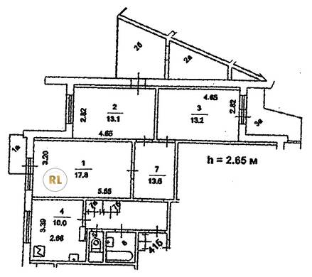
База каталог, Кол-во подъездов: 2, Имеется, П-3/17, Москва, Коньково, Пассажирский лифт: 2, От метро: 1450, Юго-Западный, да, Наименьшее кол-во этажей: 1, Наибольшее кол-во этажей: 17, Коньково, Кол-во помещений: 130, Кол-во нежилых помещений: 3, Год ввода в эксплуатацию: 2000, 3-комн, Кол-во жилых помещений: 127, дом 14, корпус 1, нет, да, да, да, да, нет, Имеется, Грузовых лифтов: 2, Год постройки: 2000, улица Академика Волгина, 37.504888, 55.642138
Свяжитесь со мной на счет цены
10 дн.
T55S642138L37S504888T

На карте


Условия сделки

Источник


Старт продаж

Возможно заинтересует