Top.Mail.Ru

улица Введенского, д. 16

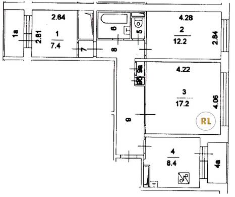
База каталог, Кол-во нежилых помещений: 2, П-30, Москва, Коньково, Пассажирский лифт: 4, От метро: 960, Юго-Западный, да, Наименьшее кол-во этажей: 1, Наибольшее кол-во этажей: 14, Беляево, Кол-во помещений: 112, Кол-во подъездов: 2, 3-комн, Год ввода в эксплуатацию: 1989, Кол-во жилых помещений: 110, D, дом 16, нет, да, да, да, да, да, Имеется, Грузовых лифтов: 0, Год постройки: 1989, улица Введенского, 37.540425, 55.642479
Свяжитесь со мной на счет цены
10 дн.
T55S642479L37S540425T

На карте


Условия сделки

Источник


Старт продаж

Возможно заинтересует