Top.Mail.Ru

улица Скульптора Мухиной, д. 3

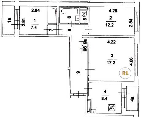
База каталог, Кол-во подъездов: 6, Имеется, П-30, Москва, Ново-Переделкино, Площадь парковки: 0, Пассажирский лифт: 12, От метро: 640, Западный, нет, Наименьшее кол-во этажей: 14, Наибольшее кол-во этажей: 14, Новопеределкино, Кол-во помещений: 333, Кол-во нежилых помещений: 1, Год ввода в эксплуатацию: 1989, 3-комн, Кол-во жилых помещений: 332, В, дом 3, нет, да, да, да, да, да, Имеется, Грузовых лифтов: 0, Год постройки: 1989, улица Скульптора Мухиной, 37.348177, 55.642520
15 200 000 Р
10 дн.
T55S642520L37S348177T
+

На карте


Условия сделки

Источник


Старт продаж

Возможно заинтересует