Top.Mail.Ru

Ленинский проспект, д. 135, к. 1

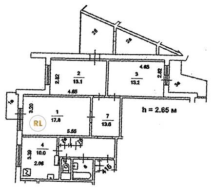
База каталог, Кол-во подъездов: 12, Имеется, П-3/16, Москва, Теплый Стан, Площадь парковки: 0, Пассажирский лифт: 12, От метро: 320, Юго-Западный, нет, Наименьшее кол-во этажей: 16, Наибольшее кол-во этажей: 16, Тропарёво, Кол-во помещений: 1154, Кол-во нежилых помещений: 5, Год ввода в эксплуатацию: 1981, 3-комн, Кол-во жилых помещений: 1149, Не присвоен, дом 135, корпус 1, да, да, да, да, да, да, Имеется, Грузовых лифтов: 12, Год постройки: 1980, Ленинский проспект, 37.475468, 55.643033
Свяжитесь со мной на счет цены
10 дн.
T55S643033L37S475468T

На карте


Условия сделки

Источник


Старт продаж

Возможно заинтересует