Top.Mail.Ru

Батайский проезд, д. 53

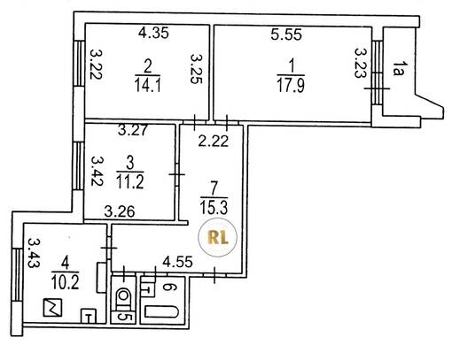
База каталог, Кол-во подъездов: 3, Отсутствует, П-44, Москва, Марьино, Пассажирский лифт: 3, От метро: 880, Юго-Восточный, да, Наименьшее кол-во этажей: 17, Наибольшее кол-во этажей: 17, Марьино, Кол-во помещений: 195, Кол-во нежилых помещений: 3, Год ввода в эксплуатацию: 1991, 3-комн, Кол-во жилых помещений: 192, дом 53, нет, да, да, да, да, да, Имеется, Грузовых лифтов: 3, Год постройки: 1991, Батайский проезд, 37.740156, 55.643312
Свяжитесь со мной на счет цены
10 дн.
T55S643312L37S740156T

На карте


Условия сделки

Источник


Старт продаж

Возможно заинтересует