Top.Mail.Ru

Батайский проезд, д. 51

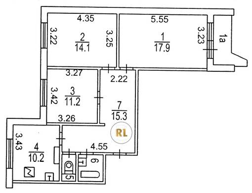
База каталог, Кол-во подъездов: 4, Отсутствует, П-44-1/17, Москва, Марьино, Пассажирский лифт: 4, От метро: 920, Юго-Восточный, да, Наименьшее кол-во этажей: 17, Наибольшее кол-во этажей: 17, Марьино, Кол-во помещений: 267, Кол-во нежилых помещений: 3, Год ввода в эксплуатацию: 1990, 3-комн, Кол-во жилых помещений: 264, Не присвоен, дом 51, нет, да, да, да, да, да, Имеется, Грузовых лифтов: 4, Год постройки: 1990, Батайский проезд, 37.738980, 55.643332
Свяжитесь со мной на счет цены
10 дн.
T55S643332L37S738980T

На карте


Условия сделки

Источник


Старт продаж

Возможно заинтересует