Top.Mail.Ru

Батайский проезд, д. 33

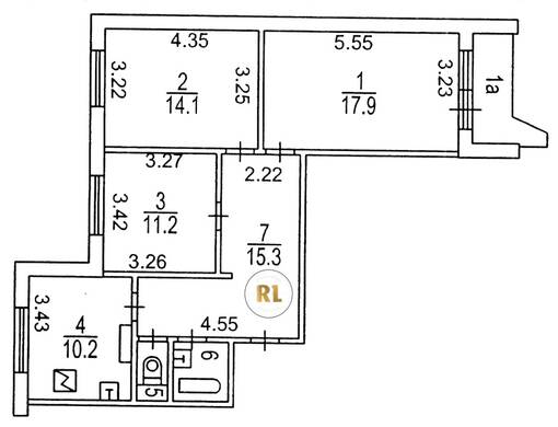
База каталог, Кол-во подъездов: 3, Имеется, П-44, Москва, Марьино, Площадь парковки: 0, Пассажирский лифт: 3, От метро: 1620, Юго-Восточный, нет, Наименьшее кол-во этажей: 16, Наибольшее кол-во этажей: 16, Марьино, Кол-во помещений: 195, Кол-во нежилых помещений: 4, Год ввода в эксплуатацию: 1981, 3-комн, Кол-во жилых помещений: 191, Не присвоен, дом 33, нет, да, да, да, нет, нет, Имеется, Грузовых лифтов: 3, Год постройки: 1981, Батайский проезд, 37.725496, 55.643465
Свяжитесь со мной на счет цены
10 дн.
T55S643465L37S725496T

На карте


Условия сделки

Источник


Старт продаж

Возможно заинтересует