Top.Mail.Ru

Люблинская ул., д. 130

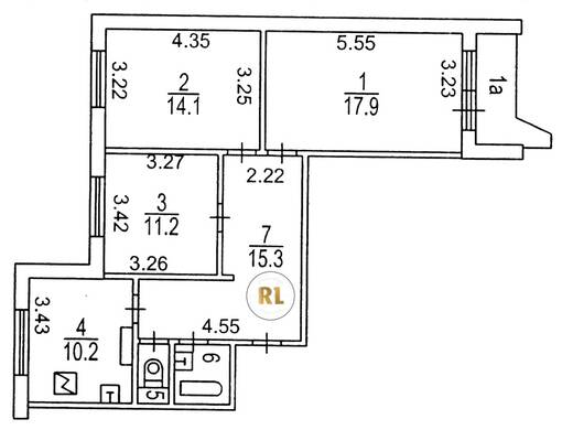
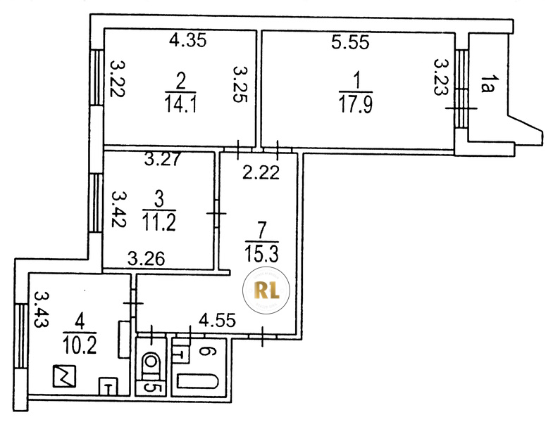
База каталог, Кол-во подъездов: 3, Имеется, П-44, Москва, Марьино, Площадь парковки: 0, Пассажирский лифт: 3, От метро: 810, Юго-Восточный, нет, Наименьшее кол-во этажей: 17, Наибольшее кол-во этажей: 17, Марьино, Кол-во помещений: 195, Кол-во нежилых помещений: 3, Год ввода в эксплуатацию: 1990, 3-комн, Кол-во жилых помещений: 192, Не присвоен, дом 130, нет, да, да, да, да, да, Имеется, Грузовых лифтов: 3, Год постройки: 1990, Люблинская улица, 37.741675, 55.643779
Свяжитесь со мной на счет цены
10 дн.
T55S643779L37S741675T

На карте


Условия сделки

Источник


Старт продаж

Возможно заинтересует