Top.Mail.Ru

улица Маршала Голованова, д. 20

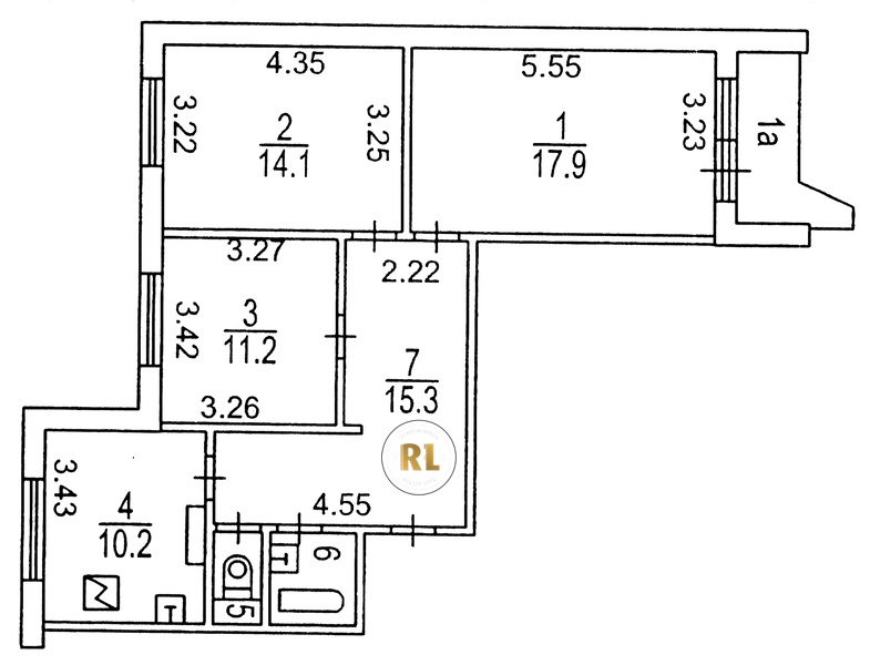
База каталог, Кол-во подъездов: 3, Отсутствует, П-44, Москва, Марьино, Пассажирский лифт: 3, От метро: 1570, Юго-Восточный, да, Наименьшее кол-во этажей: 16, Наибольшее кол-во этажей: 16, Марьино, Кол-во помещений: 181, Кол-во нежилых помещений: 1, Год ввода в эксплуатацию: 1980, 3-комн, Кол-во жилых помещений: 180, дом 20, нет, да, да, да, да, нет, Отсутствует, Грузовых лифтов: 3, Год постройки: 1980, улица Маршала Голованова, 37.725927, 55.643973
Свяжитесь со мной на счет цены
10 дн.
T55S643973L37S725927T

На карте


Условия сделки

Источник


Старт продаж

Возможно заинтересует