Top.Mail.Ru

Волынская ул., д. 8

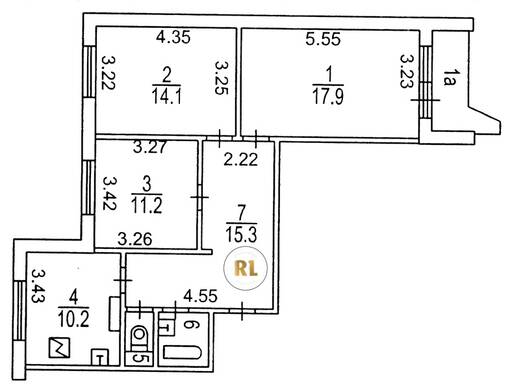
База каталог, Кол-во подъездов: 3, П-44, Москва, Солнцево, Пассажирский лифт: 3, От метро: 1610, Западный, да, Наименьшее кол-во этажей: 17, Наибольшее кол-во этажей: 17, Солнцево, Кол-во помещений: 205, Кол-во нежилых помещений: 1, Год ввода в эксплуатацию: 1991, 3-комн, Кол-во жилых помещений: 204, дом 8, нет, да, да, да, нет, нет, Грузовых лифтов: 3, Год постройки: 1991, Волынская улица, 37.411678, 55.644181
Свяжитесь со мной на счет цены
10 дн.
T55S644181L37S411678T

На карте


Условия сделки

Источник


Старт продаж

Возможно заинтересует