Top.Mail.Ru

Поречная ул., д. 3, к. 1

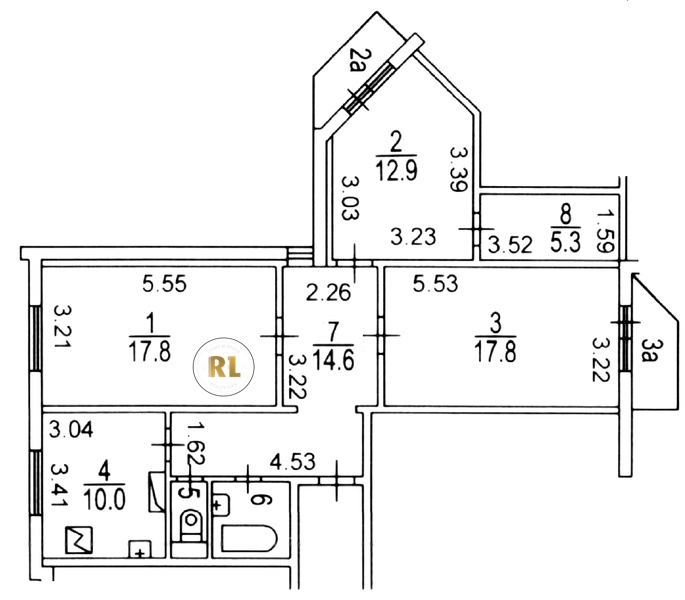
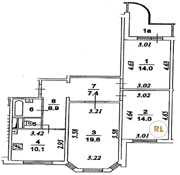
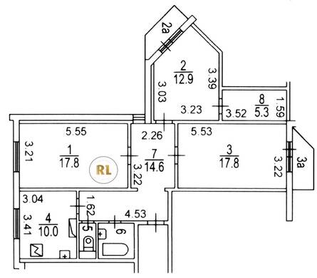
База каталог, Кол-во подъездов: 7, Имеется, П-3M, Москва, Марьино, Площадь парковки: 0, Пассажирский лифт: 7, От метро: 850, Юго-Восточный, нет, Наименьшее кол-во этажей: 14, Наибольшее кол-во этажей: 14, Марьино, Кол-во помещений: 400, Кол-во нежилых помещений: 9, Год ввода в эксплуатацию: 1995, 3-комн, Кол-во жилых помещений: 391, Не присвоен, дом 3, корпус 1, нет, да, да, да, да, да, Имеется, Грузовых лифтов: 7, Год постройки: 1995, Поречная улица, 37.750828, 55.644521
Свяжитесь со мной на счет цены
10 дн.
T55S644521L37S750828T

На карте


Условия сделки

Источник


Старт продаж

Возможно заинтересует