Top.Mail.Ru

Батайский проезд, д. 59

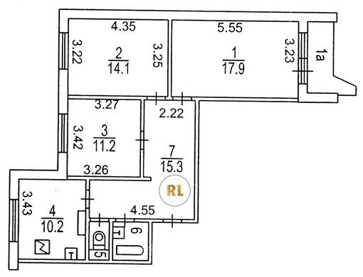
База каталог, Кол-во подъездов: 3, П-44, Москва, Марьино, Площадь парковки: 0, Пассажирский лифт: 3, От метро: 670, Юго-Восточный, нет, Наименьшее кол-во этажей: 17, Наибольшее кол-во этажей: 17, Марьино, Кол-во помещений: 209, Кол-во нежилых помещений: 5, Год ввода в эксплуатацию: 1990, 3-комн, Кол-во жилых помещений: 204, Не присвоен, дом 59, нет, да, да, да, да, да, Имеется, Грузовых лифтов: 3, Год постройки: 1990, Батайский проезд, 37.742420, 55.644608
Свяжитесь со мной на счет цены
10 дн.
T55S644608L37S742420T

На карте


Условия сделки

Источник


Старт продаж

Возможно заинтересует