Top.Mail.Ru

улица Авиаторов, д. 18

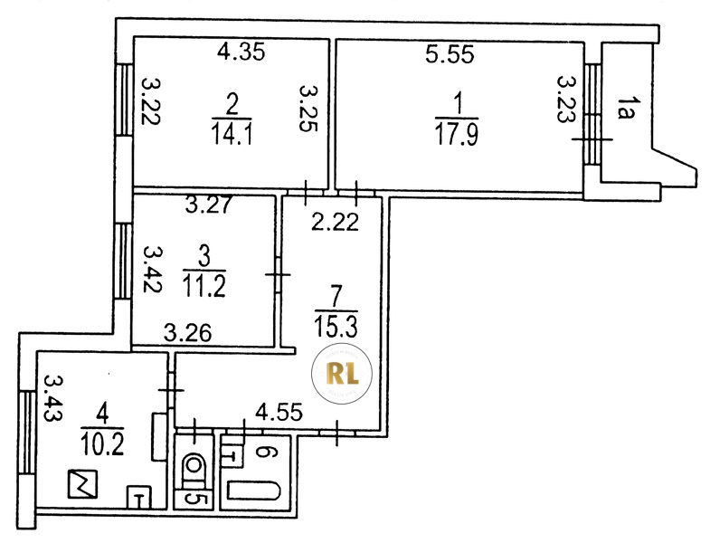
База каталог, Кол-во подъездов: 2, П-44-1/17, Москва, Солнцево, Пассажирский лифт: 2, От метро: 880, Западный, да, Наименьшее кол-во этажей: 17, Наибольшее кол-во этажей: 17, Солнцево, Кол-во помещений: 129, Кол-во нежилых помещений: 1, Год ввода в эксплуатацию: 1987, 3-комн, Кол-во жилых помещений: 128, дом 18, нет, да, да, да, да, да, Грузовых лифтов: 2, Год постройки: 1987, улица Авиаторов, 37.400099, 55.644689
Свяжитесь со мной на счет цены
10 дн.
T55S644689L37S400099T

На карте


Условия сделки

Источник


Старт продаж

Возможно заинтересует