Top.Mail.Ru

Люблинская ул., д. 124

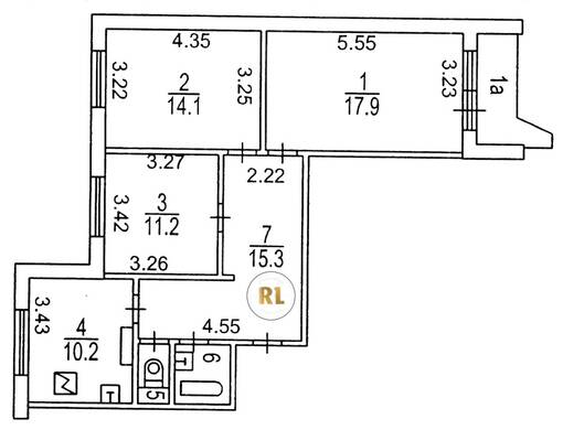
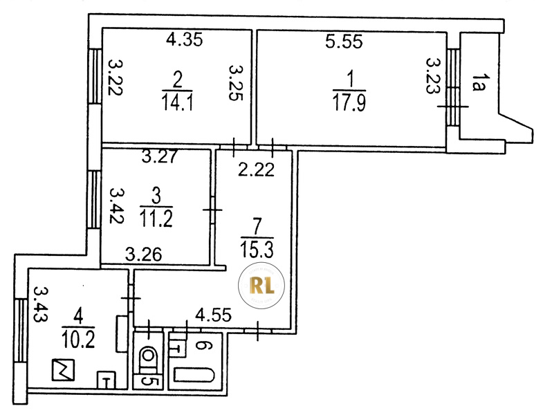
База каталог, Кол-во подъездов: 7, Имеется, П-44, Москва, Марьино, Площадь парковки: 0, Пассажирский лифт: 7, От метро: 560, Юго-Восточный, нет, Наименьшее кол-во этажей: 0, Наибольшее кол-во этажей: 17, Марьино, Кол-во помещений: 476, Кол-во нежилых помещений: 2, Год ввода в эксплуатацию: 1991, 3-комн, Кол-во жилых помещений: 474, Не присвоен, дом 124, да, да, да, да, да, да, Имеется, Грузовых лифтов: 7, Год постройки: 1991, Люблинская улица, 37.741423, 55.644897
Свяжитесь со мной на счет цены
10 дн.
T55S644897L37S741423T

На карте


Условия сделки

Источник


Старт продаж

Возможно заинтересует