Top.Mail.Ru

улица Щорса, д. 8, к. 1

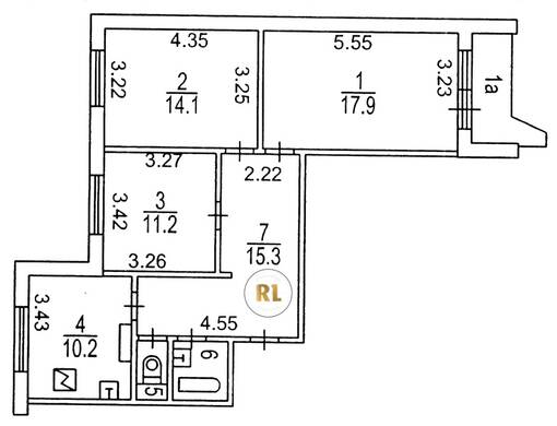
База каталог, Кол-во подъездов: 3, П-44, Москва, Солнцево, Пассажирский лифт: 3, От метро: 1000, Западный, да, Наименьшее кол-во этажей: 17, Наибольшее кол-во этажей: 17, Солнцево, Кол-во помещений: 204, Кол-во нежилых помещений: 0, Год ввода в эксплуатацию: 1989, 3-комн, Кол-во жилых помещений: 204, дом 8, корпус 1, нет, да, да, да, да, да, Грузовых лифтов: 3, Год постройки: 1989, улица Щорса, 37.403216, 55.645283
Свяжитесь со мной на счет цены
10 дн.
T55S645283L37S403216T

На карте


Условия сделки

Источник


Старт продаж

Возможно заинтересует