Top.Mail.Ru

улица Авиаторов, д. 16

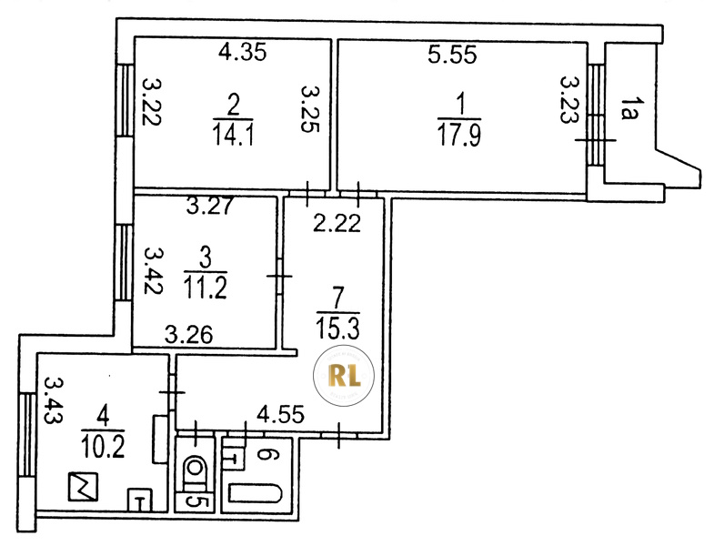
База каталог, Кол-во подъездов: 4, П-44-1/17, Москва, Солнцево, Пассажирский лифт: 4, От метро: 830, Западный, да, Наименьшее кол-во этажей: 17, Наибольшее кол-во этажей: 17, Солнцево, Кол-во помещений: 257, Кол-во нежилых помещений: 1, Год ввода в эксплуатацию: 1986, 3-комн, Кол-во жилых помещений: 256, дом 16, нет, да, да, да, да, да, Грузовых лифтов: 4, Год постройки: 1986, улица Авиаторов, 37.399399, 55.645304
Свяжитесь со мной на счет цены
10 дн.
T55S645304L37S399399T

На карте


Условия сделки

Источник


Старт продаж

Возможно заинтересует