Top.Mail.Ru

улица Маршала Голованова, д. 18

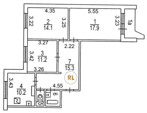
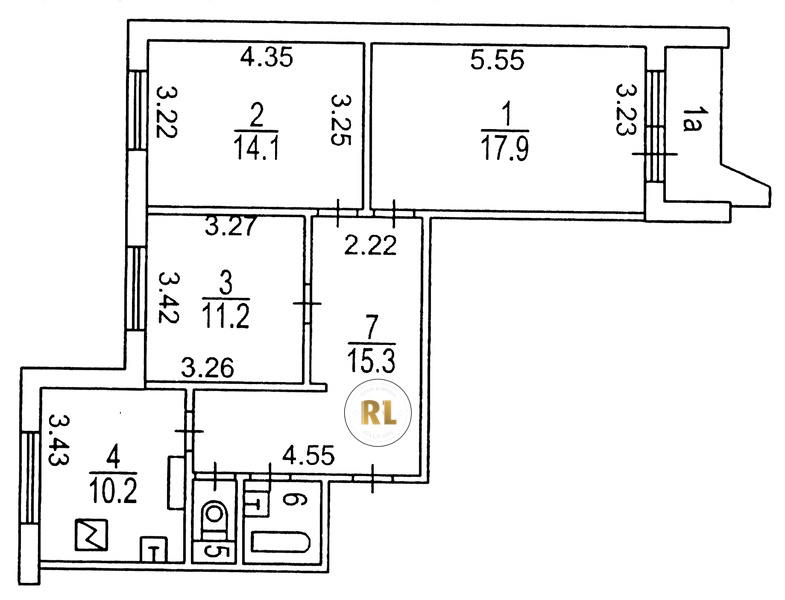
База каталог, Кол-во подъездов: 5, Имеется, П-44, Москва, Марьино, Площадь парковки: 0, Пассажирский лифт: 5, От метро: 1530, Юго-Восточный, нет, Наименьшее кол-во этажей: 0, Наибольшее кол-во этажей: 16, Марьино, Кол-во помещений: 321, Кол-во нежилых помещений: 3, Год ввода в эксплуатацию: 1980, 3-комн, Кол-во жилых помещений: 318, Не присвоен, дом 18, нет, да, да, да, да, нет, Имеется, Грузовых лифтов: 5, Год постройки: 1980, улица Маршала Голованова, 37.726421, 55.645329
Свяжитесь со мной на счет цены
10 дн.
T55S645329L37S726421T

На карте


Условия сделки

Источник


Старт продаж

Возможно заинтересует