Top.Mail.Ru

Поречная ул., д. 3, к. 2

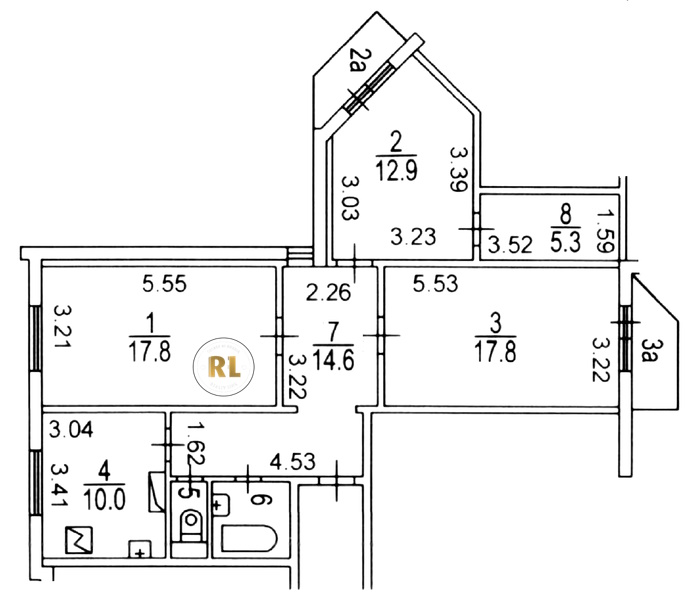
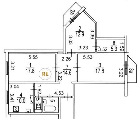
База каталог, Кол-во подъездов: 4, Имеется, П-3M, Москва, Марьино, Площадь парковки: 0, Пассажирский лифт: 4, От метро: 700, Юго-Восточный, нет, Наименьшее кол-во этажей: 14, Наибольшее кол-во этажей: 14, Марьино, Кол-во помещений: 194, Кол-во нежилых помещений: 2, Год ввода в эксплуатацию: 1995, 3-комн, Кол-во жилых помещений: 192, Не присвоен, дом 3, корпус 2, нет, да, да, да, да, да, Имеется, Грузовых лифтов: 4, Год постройки: 1995, Поречная улица, 37.750029, 55.645431
Свяжитесь со мной на счет цены
10 дн.
T55S645431L37S750029T

На карте


Условия сделки

Источник


Старт продаж

Возможно заинтересует