Top.Mail.Ru

Люблинская ул., д. 126

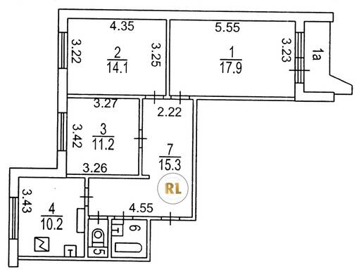
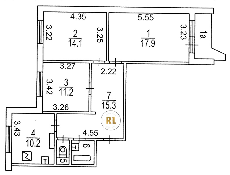
База каталог, Кол-во помещений: 132, Имеется, П-44, Москва, Марьино, Площадь парковки: 0, Пассажирский лифт: 2, От метро: 490, Юго-Восточный, нет, Наименьшее кол-во этажей: 17, Наибольшее кол-во этажей: 17, Марьино, Кол-во подъездов: 2, Год ввода в эксплуатацию: 1991, Кол-во нежилых помещений: 4, 3-комн, Кол-во жилых помещений: 128, Не присвоен, дом 126, да, да, да, да, да, да, Грузовых лифтов: 2, Год постройки: 1991, Люблинская улица, 37.743193, 55.645603
Свяжитесь со мной на счет цены
10 дн.
T55S645603L37S743193T

На карте


Условия сделки

Источник


Старт продаж

Возможно заинтересует