Top.Mail.Ru

улица Авиаторов, д. 12

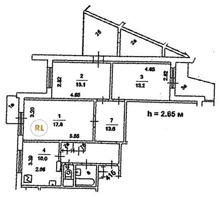
База каталог, Кол-во подъездов: 6, Имеется, П-3-2/16, Москва, Солнцево, Пассажирский лифт: 6, От метро: 540, Западный, да, Наименьшее кол-во этажей: 17, Наибольшее кол-во этажей: 17, Солнцево, Кол-во помещений: 409, Кол-во нежилых помещений: 1, Год ввода в эксплуатацию: 1987, 3-комн, Кол-во жилых помещений: 408, дом 12, да, да, да, да, да, да, Имеется, Грузовых лифтов: 6, Год постройки: 1987, улица Авиаторов, 37.396030, 55.645766
19 500 000 Р
10 дн.
T55S645766L37S396030T
+

На карте


Условия сделки

Источник


Старт продаж