Top.Mail.Ru

Люблинская ул., д. 175

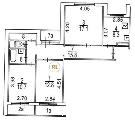
База каталог, Кол-во подъездов: 6, Имеется, П-55, Москва, Марьино, Площадь парковки: 0, Пассажирский лифт: 6, От метро: 460, Юго-Восточный, нет, Наименьшее кол-во этажей: 12, Наибольшее кол-во этажей: 14, Марьино, Кол-во помещений: 229, Кол-во нежилых помещений: 7, Год ввода в эксплуатацию: 1994, 3-комн, Кол-во жилых помещений: 222, Не присвоен, дом 175, да, да, да, да, да, да, Имеется, Грузовых лифтов: 6, Год постройки: 1994, Люблинская улица, 37.747379, 55.645878
Свяжитесь со мной на счет цены
10 дн.
T55S645878L37S747379T

На карте


Условия сделки

Источник


Старт продаж

Возможно заинтересует