Top.Mail.Ru

Луговой проезд, д. 10, к. 1

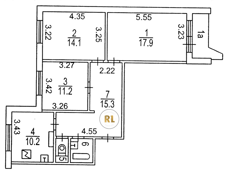
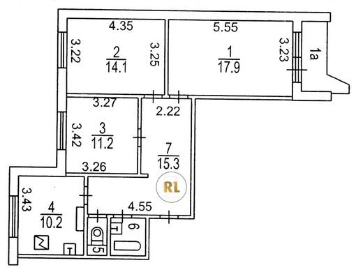
База каталог, Кол-во подъездов: 3, Имеется, П-44, Москва, Марьино, Площадь парковки: 0, Пассажирский лифт: 3, От метро: 710, Юго-Восточный, нет, Наименьшее кол-во этажей: 10, Наибольшее кол-во этажей: 10, Марьино, Кол-во помещений: 123, Кол-во нежилых помещений: 4, Год ввода в эксплуатацию: 1994, 3-комн, Кол-во жилых помещений: 119, Не присвоен, дом 10, корпус 1, нет, да, да, да, да, да, Имеется, Грузовых лифтов: 3, Год постройки: 1994, Луговой проезд, 37.751269, 55.645969
Свяжитесь со мной на счет цены
10 дн.
T55S645969L37S751269T

На карте


Условия сделки

Источник


Старт продаж

Возможно заинтересует