Top.Mail.Ru

Новочеркасский бульвар, д. 30

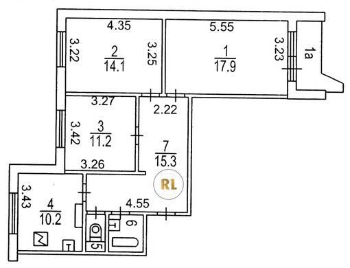
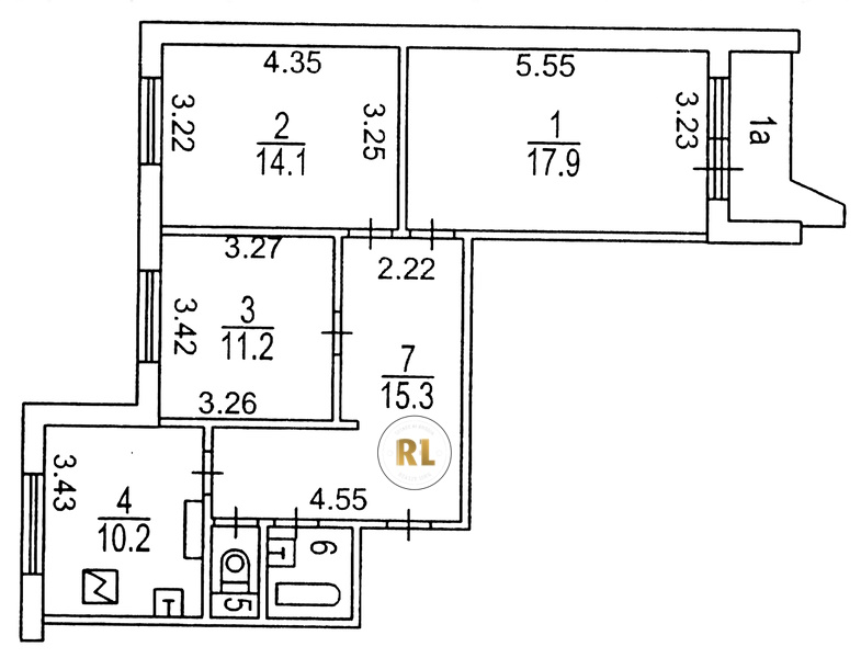
База каталог, Кол-во подъездов: 3, П-44, Москва, Марьино, Площадь парковки: 0, Пассажирский лифт: 3, От метро: 1310, Юго-Восточный, нет, Наименьшее кол-во этажей: 16, Наибольшее кол-во этажей: 16, Марьино, Кол-во помещений: 195, Кол-во нежилых помещений: 4, Год ввода в эксплуатацию: 1981, 3-комн, Кол-во жилых помещений: 191, Не присвоен, дом 30, нет, да, да, да, да, нет, Имеется, Грузовых лифтов: 3, Год постройки: 1981, Новочеркасский бульвар, 37.725900, 55.646020
Свяжитесь со мной на счет цены
10 дн.
T55S646020L37S725900T

На карте


Условия сделки

Источник


Старт продаж

Возможно заинтересует