Top.Mail.Ru

Поречная ул., д. 9

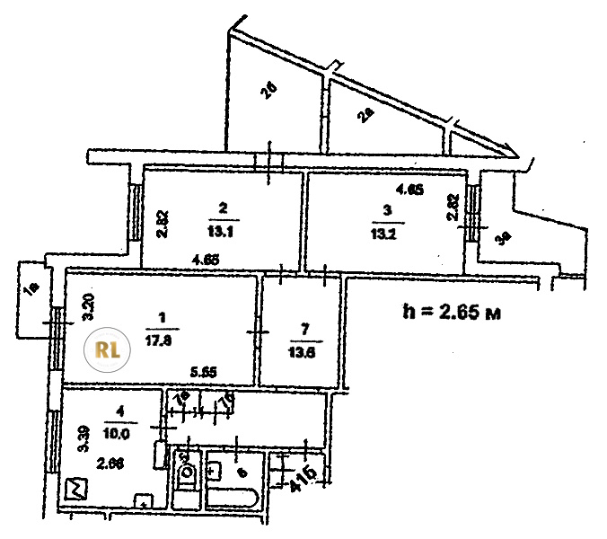
База каталог, Кол-во подъездов: 6, Имеется, П-3/17, Москва, Марьино, Площадь парковки: 0, Пассажирский лифт: 6, От метро: 1020, Юго-Восточный, нет, Наименьшее кол-во этажей: 10, Наибольшее кол-во этажей: 17, Марьино, Кол-во помещений: 324, Кол-во нежилых помещений: 12, Год ввода в эксплуатацию: 1995, 3-комн, Кол-во жилых помещений: 312, Не присвоен, дом 9, нет, да, да, да, да, да, Имеется, Грузовых лифтов: 6, Год постройки: 1995, Поречная улица, 37.756344, 55.646152
Свяжитесь со мной на счет цены
10 дн.
T55S646152L37S756344T

На карте


Условия сделки

Источник


Старт продаж

Возможно заинтересует